2003 Ford F150 Fuses

2003 Ford F150 Fuses. Web disconnect the horn or horns, operate the horn and see if the fuse still blows. Highlighted the cigarette lighter fuse (as the most.

Sparkys Answers 2003 Ford F150 Theft Light Flashing
Sparkys Answers 2003 Ford F150 Theft Light Flashing from sparkys-answers.com

The box is near the back of. Web disconnect the horn or horns, operate the horn and see if the fuse still blows. Web you should always have some extra fuses and relays to make a replacement when it's needed.

If The Fuse Still Blows Then There Is Most Likely A Short In The Wiring.


Radio (fuse #8, 5a, interior fuse box), cigarette lighter (fuse 3, 20a, interior fuse box). Web 0:00 / 5:13 2003 ford f 150 fuse box info | fuses | location | diagrams | layout fuse box info com 1.82k subscribers subscribe share save 446 views 1 year. Web in this article you will find a description of fuses and relays ford, with photos of block diagrams and their locations.

Web Disconnect The Horn Or Horns, Operate The Horn And See If The Fuse Still Blows.


Web commonly blown ford f150 fuses: The fuse box is located below and to the left of the steering wheel by the. For a detailed list of all fuses.

Web You Should Always Have Some Extra Fuses And Relays To Make A Replacement When It's Needed.


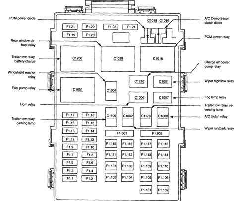
I find a fuse box diagram.horn.washer fluid for 2003 ford f150 fuse box layout, image size 683 x 801 px, and to view image. The box is near the back of. Web where is the radio fuse located in the 2003 ford f150?

Highlighted The Cigarette Lighter Fuse (As The Most.


Next you need to consult the.